3 bedroom
2 bathroom
2 receptions
1033.34 sq ft (96 sq m)
3 bedroom
2 bathroom
2 receptions
1033.34 sq ft (96 sq m)
If you are looking for a spacious three-bedroom family home in a popular residential location, then look at this great house. The saying ‘they don’t build them like this anymore’ really does ring true here. Solidly built, generous room sizes and a plot that offers far more outside space than many modern homes.
What’s particularly appealing about this property is that it’s ready to move into but still offers plenty of scope for someone to come in and put their own stamp on it if they wish.
As you enter the property via the porch into the entrance hallway, you immediately get a sense of the space on offer. The living room, located to the front, is a lovely bright room with a large window allowing plenty of natural light to flood in. There is ample space for sofas and furniture, and a fireplace creates a cosy focal point for the room.
Moving through, the kitchen has been re-fitted with modern high-gloss units, offering a sleek finish along with plenty of storage and worktop space. There is room for all the usual appliances, and the layout flows nicely through into the dining family area, creating a sociable space ideal for both day-to-day living and entertaining. The dining family area itself has space for a good-sized table and place for sofa or chairs whilst enjoying views out to the rear.
One of the standout features of this home is the additional side extensions which has created a utility room, a downstairs shower room and extra storage. It also provides a very practical secondary entrance, perfect for coming in with muddy boots, pets or children, helping to keep the main part of the house clean and tidy.
Upstairs, there are three bedrooms and a family three-piece bathroom. The two main bedrooms are both generous doubles with plenty of room for wardrobes and additional furniture. The third bedroom is a single room, ideal as a child’s bedroom, nursery or home office.
Outside, the garden enjoys a sunny aspect so you can kick back and enjoy the sunshine at the end of a tiring working day. The space offers excellent potential, there is a patio area perfect for outdoor seating and entertaining, with the rest mainly laid to gravel for ease of maintenance and potential to personalise further.
To the front, there is a driveway and stoned covered area providing off-road parking for approx. three vehicles, along with additional space that could be adapted further if required.
All in all, this is a fantastic opportunity to purchase a well-built home with great space both inside and out, in a sought-after area.
Available for sale with No Chain.
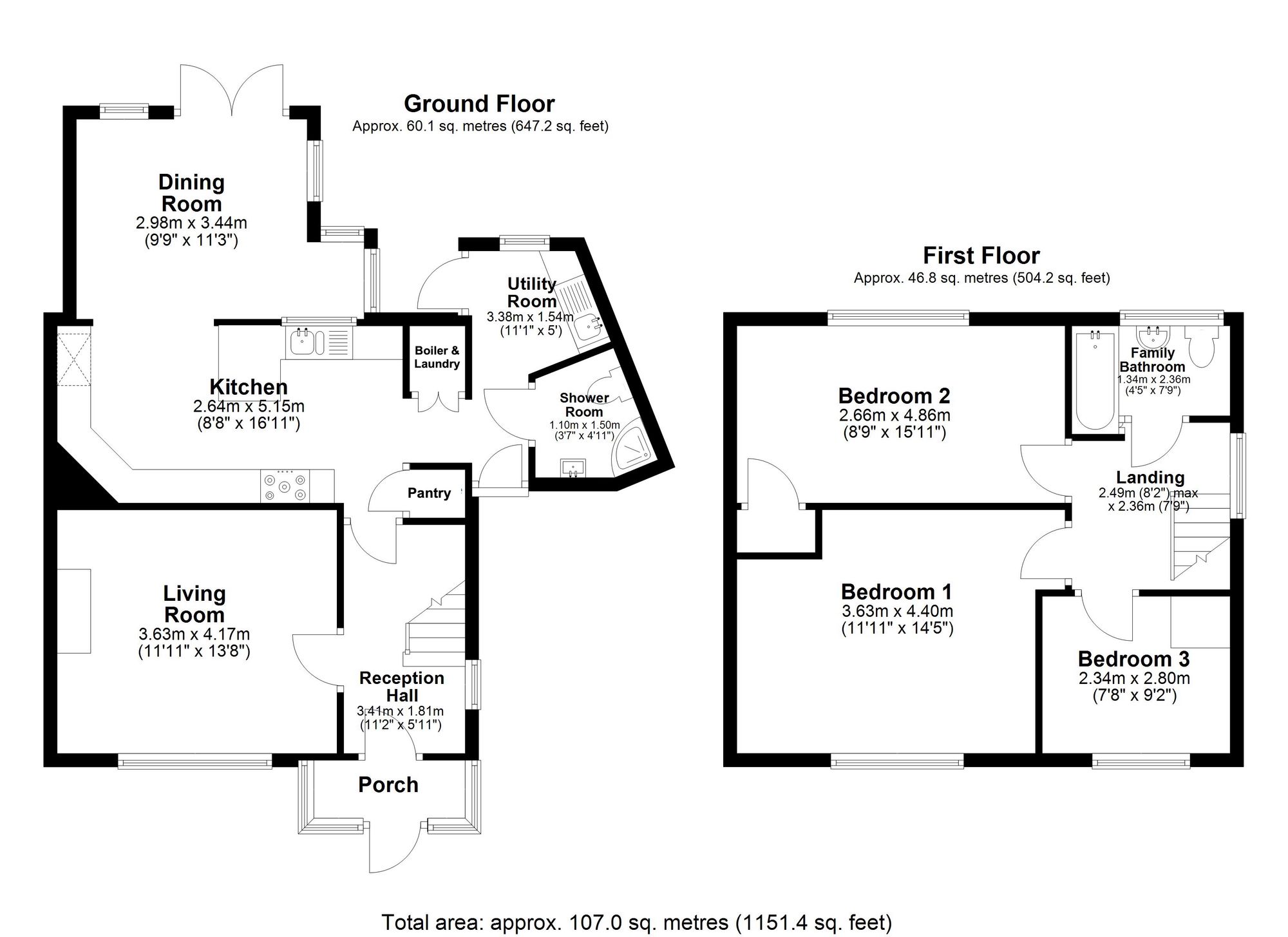
Hallway
Living Room11' 11" x 13' 8" (3.63m x 4.17m)
Kitchen Area8' 8" x 16' 11" (2.64m x 5.15m)
Dining Family Area9' 9" x 11' 3" (2.98m x 3.44m)
Utility Room11' 1" x 5' 1" (3.38m x 1.54m)
Downstairs Shower Room3' 7" x 4' 11" (1.10m x 1.50m)
Landing
Bedroom One11' 11" x 14' 5" (3.63m x 4.40m)
Bedroom Two8' 9" x 15' 11" (2.66m x 4.86m)
Bedroom Three7' 8" x 9' 2" (2.34m x 2.80m)
Bathroom4' 5" x 7' 9" (1.34m x 2.36m)



















